Аренда в г. Слуцк
Наша компания предлагает в аренду торговые и офисные помещения в городе Слуцк на выгодных условиях.
Адрес: РБ, Минская область, г. Слуцк, ул. Ленина, 212.
Назначение: Многофункциональное (офис, студия, магазин не продовольственных товаров, оказание услуг и…
читать далее- Описание
- Отзывы
Наша компания предлагает в аренду торговые и офисные помещения в городе Слуцк на выгодных условиях.
Адрес:
РБ, Минская область, г. Слуцк, ул. Ленина, 212.
Назначение:
Многофункциональное (офис, студия, магазин не продовольственных товаров, оказание услуг и тд).
Преимущества:
- Первый этаж;
- Ровные помещения (прямоугольные), без столбов и перегородок. Вы платите за полезную площадь;
- Оживленное движение (находимся прямо на центральной улице города);
- Свет, энергосберегающие лампы;
- Отопление низкотемпературное, собственное. Здание хорошо утеплено;
- Интерент, телефон;
- Здание после строительства, новое, сдача была февраль 2019;
- На втором этаже размещается большой магазин отопления и сантехники;
- Первый месяц аренды - бесплатно;
- Цена включает НДС (20%);
- Готовы рассмотреть Ваши любые предложения.
Сдаваемые в аренду площади:
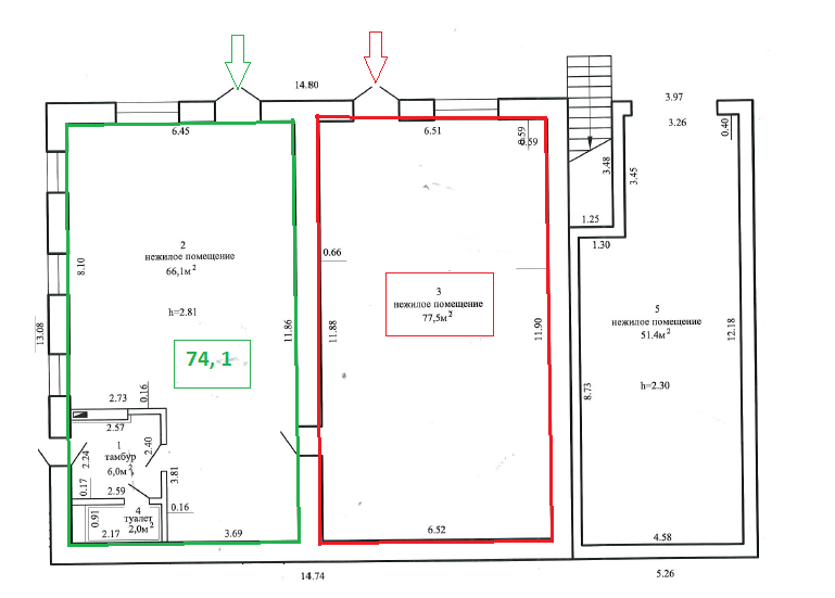
План первого этажа.
- 74.1 м2 (1 этаж) - 6.6 $ с НДС Сдано
- 77.5 м2 (1 этаж) - 6.6 $ с НДС Сдано
- 65.2 м² (2 этаж) - 4.8 $ c НДС Сдано
(8029) 111-95-91 Арсений

Вы должны авторизоваться, чтобы оставлять комментарии.


Комментарии ()